Fração de 16,66% de 01 (um) terreno, com a área de 600,72m², Vila Nova, em Lages/SC

Lages, SC R$ 33.986,40

-49% R$ 66.640,00

  • 3 8:
  • 0 0:
  • 0 0:
  • 0 0
  • 3 8:
  • 0 0:
  • 0 0:
  • 0 0
Em Aberto
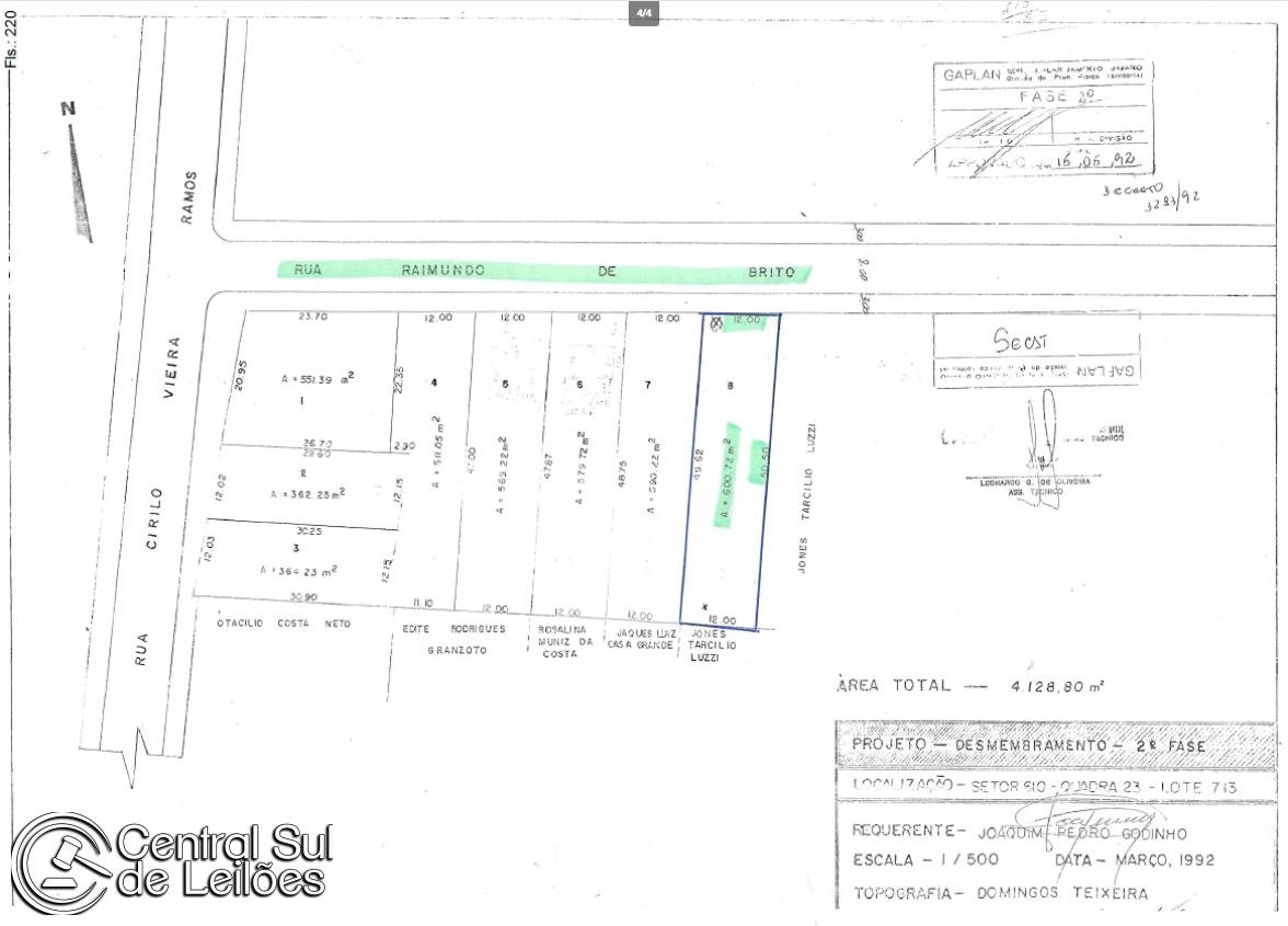
Processo PJe nº 0003634-10.2011.5.12.0050 Exequente(s): Sylas Gonçalves Pereira Executado(s): Suelen de Freitas Burger – Vidros – ME e outros (2) Bem(ns): A fração de 16,66% pertencente ao executado de 01 (um) terreno, com a área superficial de 600,72m², denominado lote nº 08 da quadra única do desmembramento Joaquim Pedro Godinho; localizado na Rua Raimundo de Brito, distante 71,70m, da esquina formada com a Rua Cirilo Vieira Ramos, no Bairro Vila Nova, no Município de Lages/SC, com as seguintes medidas e confrontações: frente, na extensão de 12,00m, com a Rua Raimundo de Britto; fundos, na extensão de 12,00m com terrenos de Jones Tarcilio Luzzi; de um lado na extensão de 49,62m, com a área 07 do proprietário; e , de outro lado, na extensão de 50,50m, com terrenos de Jones Tarcilio Luzzi; matriculado sob o nº 15.887 no 1º O.R.I de Lages/SC. Obs.: Conforme averbação do Av-4, foi edificada no terreno uma casa de alvenaria, com 01 pavimento, com a área de aproximadamente 139,00m², com todas as suas instalações e demais benfeitorias em geral completas; e que a mesma recebeu o nº 86 para fins de localização de endereçamento. Ônus: Penhorado nos autos 0005637-98.2002.8.24.0039 que tramita na 3ª Vara Cível de Lages/SC, nos autos de nº 0000037-13.2022.5.12.0029 que tramita na 2ª Vara do Trabalho de Lages/SC; indisponibilidade de bens nos autos de nº 0000321-40.2019.5.09.0019 que tramita na 2ª Vara do Trabalho de Londrina/PR. Fração de 16,66% avaliada em R$ 66.640,00 (sessenta e seis mil e seiscentos e quarenta reais). Obs.: Ressalta-se que o objeto do leilão é somente sobre a parte ideal de 16,66% do referido terreno, devido a existência de condomínio ou coproprietários.
.
Comitente
Comarca
Cidade Lages - SC
Lote 242191
Tipo
Local
Endereço
Matrícula
Processo 0003634-10.2011.5.12.0050
Exequente
Comitente
Executado
Lages/SC

Veja Mais

Outras portunidades em: Lages - SC